Structura metalica industriala complexa
Structura metalica hala industriala
Structura metalica sediu administrativ Focsani
Estacada industriala pe structura metalica
Structura beton armat bazin de retentie diametru 30 metri
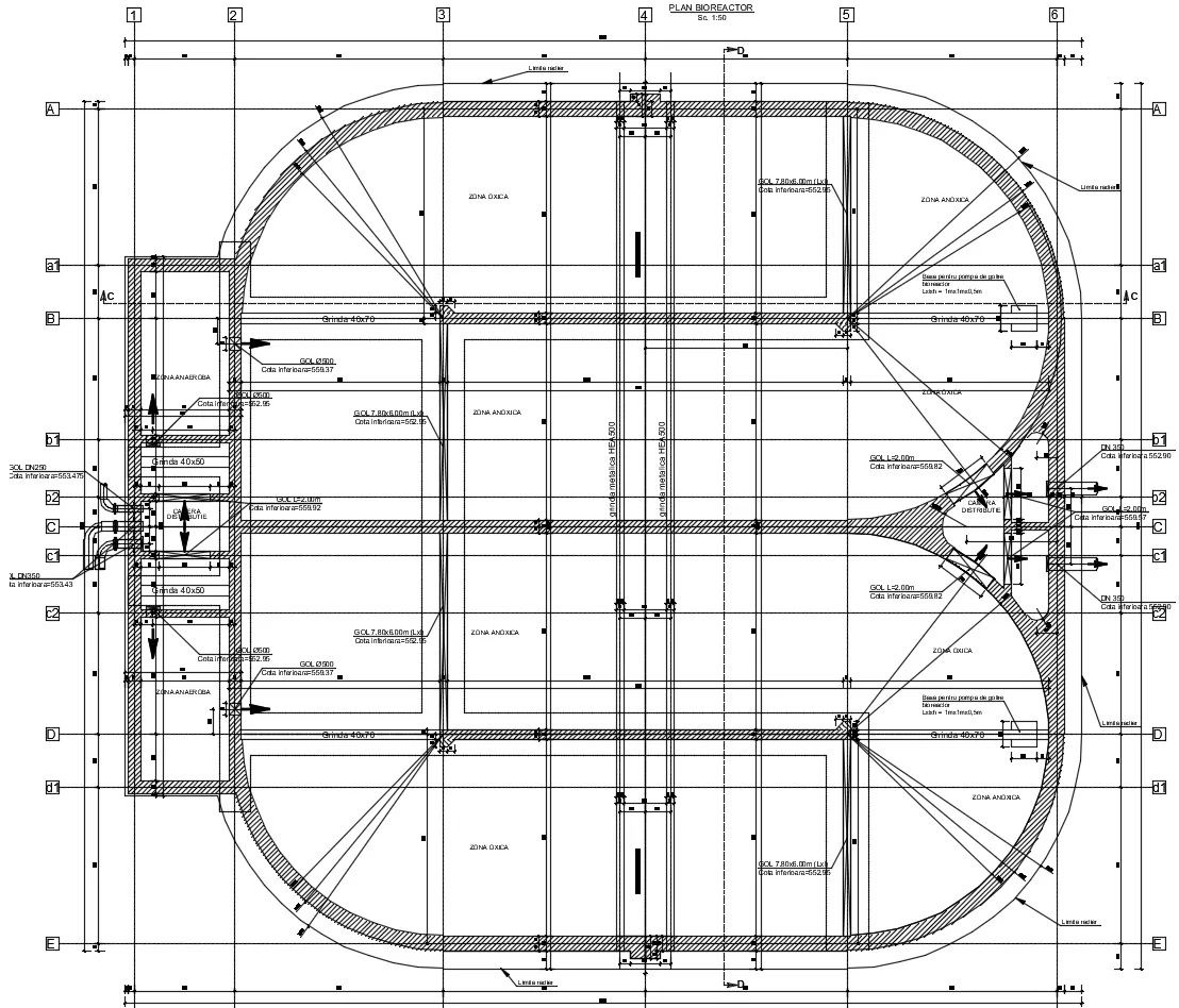
Structura de beton armat Bioreactor statie de epurare
Analizarea structurilor folosind produse software specializate





TTH Firma Proiectare Structuri De Rezistenta Cladiri Civile Si Industriale
Echipa noastra ofera servicii de proiectare structuri de rezistenta pentru cladiri, atat civile cat si industriale, precum si servicii conexe cum ar fi expertize tehnice si verificari de proiecte exigentele A1 si A2.
Rolul inginerilor proiectanti de structuri de rezistenta in societate este unul esential, acestia raspunzand de rezistenta si stabilitatea structurilor cladirilor ce fac parte din patrimoniul construit al tarii.De aceea, tratam cu mare seriozitate si responsabilitate fiecare proiect, analizand de fiecare data solutiile optime atat din punct de vedere structural cat si din punct de vedere al impactului financiar asupra investitiei.
Portofoliul nostru de lucrari este unul foarte diversificat, de la cladiri civile (cladiri de locuit, cladiri de birouri) pana la cladiri industriale (hale metalice industriale echipate sau nu cu pod rulant, structuri metalice industriale complexe avand diverse functiuni, structuri de tip bazin Bioreactor beton armat pentru statii de epurare orasenesti).


Proiectare Structura De Rezistenta
Procesul de proiectare al structurilor de rezistenta pentru cladiri este unul amplu, ce implica analizarea cladirilor din punctul de vedere al rezistenței mecanice si a stabilității sub actiunea incarcarilor statice, climatice, dinamice si nu in ultimul rand, sub actiunea seismica.
Romania este o tara activa din punct de vedere seismic, acest lucru avand implicatii deosebite in ceea ce priveste asigurarea integritatii oricarei cladiri in cazul producerii unui seism.
Data fiind prezenta actiunii seismice, a benefica de o proiectare judicioasa a structurilor este esential pentru orice investitor, scopul inginerului proiectant fiind de a gasi un echilibru intre performanta structurala a cladirii si a costurilor de punere in opera.Acest lucru se poate realiza printr-o buna colaborare intre Client, Arhitect, inginerii proiectanti de structura, dar si a inginerilor specialisti din domeniile Instalatii.

Proiectare Structura Metalica
Structurile metalice sunt utilizate la scara larga datorita flexibilitatii acestora si a unui timp redus in executie.Un avantaj major il reprezinta posibilitatea de prefabricare/modularea structurii in ansambluri realizate in uzine, ceea ce ofera un control al calitatii sporit, componentele urmand a fi asamblate in santier prin intermediul suruburilor. Structurile metalice pot fi folosite pentru toate categoriile de constructii, rezidentilale, cladiri de birouri, structuri industriale si hale.Unul din criteriile ce determina alegerea solutiei de structura metalica este acela ca elementele de otel permit realizarea unor deschideri mai mari ale cladirilor.
Echipa noastra asigura prin proiectare o calitate superioara a proiectelor, datorata atat experientei cat si utilizarii soft-urilor specializate atat pentru calculul cat si pentru detalierea componentelor structurilor metalice.



Proiectare Structura Beton Armat
Structurile de beton armat au o pondere mare in ingineria structurala, fiind foarte des utilizate in special in cazul cladirilor rezidentiale sau a cladirilor de birouri insa pot fi aplicate si in cazul structurilor industriale.
Utilizarea acestui sistem structural confera durabilitate si siguranta in exploatare a cladirilor, chiar si in cazul actiunii seismice. Un alt avantaj il reprezinta posibilitatea asigurarii unei rezistente la foc sporite.
Datorita faptului ca teritoriul Romaniei este expus in intregime hazardului seismic, a fost necesara implementarea unor serii de normative si prescriptii ce permit asigurarea prin proiectare a unor performante ridicate ale structurilor de beton armat, din punct de vedere al rezistentei si a stabilitatii mecanice.

Proiectare Hale Industriale
Halele industriale sunt structuri metalice sau structuri de beton armat prefabricat, avand o gama larga de aplicatii, de la depozitare pana la desfasurarea diverselor activitati economice sau de productie.
Solutia halelor pe structura metalica este o solutie mai avantajoasa datorita accesibilitatii produselor din otel si a rapiditatii in executie.Structura principala de rezistenta se realizeaza din cadre de otel structural, urmand ca pentru acoperis si peretii de inchidere sa fie folosite profile de otel zincat laminate la rece de tip Z si C, ce vor sustine panourile de inchidere izolante.
In proiectarea curenta, in multe din situatii halele au fost realizate inclusiv cu o zona de mezanin pentru a permite realizarea unor spatii de birouri pe o anumita suprafata, separata de zonele de depozitare sau de productie.
In functie de necesitatile clientilor, echipa noastra poate realiza diferite sisteme structurale, metodele de calcul permitand obtinerea unor deschideri mari ale elementelor portante.



Proiectare Structura Industriala
Structurile industriale sunt reprezentate de diverse platforme metalice industriale, estacade metalice, structuri metalice de sustinere a echipamentelor industriale, structuri de tip piloni publicitari in diferite solutii constructive, fie monotub fie structuri zabrelite.
Tot din categoria structurilor industriale fac parte si anumite constructii ingineresti cum ar fi bazine de aerare sau decantoare, realizate din beton armat si utilizate in statiile de epurare orasenesti.

Expertiza Tehnica
Evaluarea seismică: ansamblul investigațiilor care se desfășoară pentru evaluarea comportării seismice a unei clădiri la acțiunea mișcărilor seismice severe.
Expertiza tehnică: cercetare cu caracter tehnic făcută de un expert tehnic atestat asupra unei situații sau probleme cu caracter tehnic pentru lămurirea acesteia și, după caz, pentru identificarea soluției optime de remediere.
Expertiză tehnică la acțiuni seismice: expertiză tehnică care se referă la evaluarea seismică a unei clădiri, la necesitatea lucrărilor de intervenție și, după caz, la tipul și anvergura acestora.
Inspecția în teren: activitățile desfășurate în teren pentru verificarea și completarea informațiilor privind detaliile clădirii din documentația tehnică de proiectare original sau din proiectarea simulată.
Lucrări de intervenție: lucrări de construcție realizate în vederea reducerii vulnerabilității construcțiilor existente.


